The Tower Masseria, Basilicata, Southern Italy

  • Unconditional Online Auction Sale
  • Low Presale Estimate : €750,000
  • Bedrooms: 4
  • Bathrooms: 5
  • Reception Rooms: 2

Villa with Olive Groves - Swimming Pool - Breathtaking Views


List Price €1,300,000

Bidding From €750,000

- 4 bedrooms | 5 bathrooms
- Swimming pool
- Olive groves
- 216 sq.m. (2,325 sq.ft.)
- Terraces of 852 sq.m. (9,171 sq.ft)
- 4.2 Hectares (10.4 acres) of land

Freehold

Built just 13 years ago by an acclaimed Italian architect, this impressive masseria-style villa offers exceptional comfort in an extraordinary scenic setting. Its grandeur and craftsmanship are striking—rarely found features such as buttressed walls, tower crenellations, and vaulted ceilings throughout set this property apart.

The location is equally remarkable. Only 25 minutes from Matera, a UNESCO World Heritage city celebrated for its ancient cave dwellings, winding stone streets, renowned restaurants, and vibrant boutiques, the villa enjoys convenient proximity to one of Italy’s most captivating destinations.

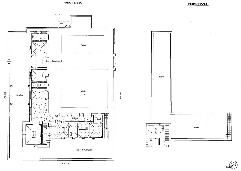
At the heart of the estate lies a central courtyard framed by a graceful cloister and an ancient olive tree, alongside a beautiful swimming pool. This tranquil space, overlooked by the villa’s majestic tower, provides access to three of the en suite bedrooms. Beyond the courtyard, a stone archway leads to a panoramic lawn with a dining pergola and mature trees. Each ground-floor bedroom features an en suite bathroom, walk-in closet with fitted wardrobes, and direct access to the terraces and gardens.

Inside, the villa boasts a bespoke kitchen, a practical laundry/utility room, and an open-plan dining and living area flowing into a cosy snug with a fireplace. All ground-floor rooms, including the bedrooms, open through French doors to the surrounding terraces and lawns. The first-floor tower houses the master suite, which enjoys direct access to a panoramic roof terrace stretching the full length of the property—an idyllic vantage point for taking in the sweeping views.

The villa has been maintained to impeccable standards. Interiors show minimal use, with high-quality fixtures and fittings throughout, and an integrated air-conditioning system that also provides heating in winter. The landscaped gardens benefit from an irrigation system and external lighting.

Despite the villa’s serene setting, amenities are close by: two charming villages—perfect for a morning cappuccino or evening aperitivo—are just seven minutes away, offering a taste of authentic southern Italian life. Matera’s rich cultural scene is a short 25-minute drive, while the crystal-clear beaches of Puglia lie less than an hour away. Bari Airport, with regular connections to Rome, Milan, Pisa, and major European hubs, can be reached within an hour by car.

The villa is available fully furnished and turn-key by separate negotiation. Excellent rental potential. Further information available upon request.

See Legal Documents.
Post Auction: Signing of Purchase Contract by 19th December 2025 and Notary Closing by 16th January 2026.

Buyer Referral Fee
A Buyer Referral fee of 2% of the sale price is available to any agent should they introduce the winning bidder.

To the property:
Miglionico - 4km
Matera – 24km
Bari Airport – 86km
Beaches of Puglia – 55km

- - - - - - - - - - - - - - - - - -


Prezzo di listino € 1.300.000

Offerte da € 750.000

- 4 camere da letto | 5 bagni
- Piscina
- Oliveto
- 216 m2
- Terrazze di 852 m2
- 4,2 Ettari di terreno

Costruita 13 anni fa da un acclamato architetto italiano, questa villa in stile “masseria” offre il massimo del comfort in una splendida posizione panoramica. La grandezza, la qualità e la lavorazione di questa proprietà sono rare da trovare, con caratteristiche come la torre e i soffitti a volta in ogni stanza.

Anche la posizione è davvero speciale. A soli 25 minuti dalla città UNESCO di Matera.

Il cortile centrale della villa è caratterizzato da un portico, da un ulivo secolare e da una piscina: un magnifico luogo per rilassarsi, da cui si accede a tre delle camere, tutte con bagno privato. Attraversando l'arco in pietra si accede al prato panoramico con pergola e alberi secolari. Tutte le camere da letto al piano terra hanno un bagno privato, una cabina armadio con armadi a muro e accesso diretto alle terrazze e al giardino.

All'interno della villa si trovano una cucina con mobili su misura, una lavanderia, una sala da pranzo e un salone che conduce a un'incantevole area salotto con camino. Tutte le stanze al piano terra della villa, comprese le camere da letto, hanno porte-finestre che si aprono sulle terrazze e sui prati. Nella “torre” del primo piano si trova la camera da letto principale con accesso diretto alla terrazza panoramica. La terrazza si estende per tutta la lunghezza della proprietà, un altro luogo idilliaco da cui si può godere di una vista mozzafiato.

La proprietà è mantenuta a uno standard impeccabile, con infissi e arredi di altissima qualità e aria condizionata integrata (che fornisce anche il riscaldamento durante i mesi invernali). I giardini sono serviti da un sistema di irrigazione e di illuminazione esterna.

Quando non si gode della serenità della proprietà, si è a soli sette minuti da due incantevoli villaggi, ideali per un cappuccino o un aperitivo. Per una più ampia scelta di servizi, cultura ed esperienze culinarie, la città di Matera è a soli 25 minuti di auto. Le belle spiagge della Puglia sono a meno di un'ora di distanza e l'aeroporto di Bari, servito da voli regolari per Roma, Milano, Pisa e i principali hub europei, è a un'ora di auto.

La villa è disponibile completamente arredata e chiavi in mano con trattativa separata. Eccellente potenziale di affitto.

Si prega di scaricare la documentazione due diligence dal link 'Legal Documents'.
Dopo Asta: Stipula Proposta d'Acquisto entro il 19 dicembre 2025, Rogito Notarile entro il 26 gennaio 2026.

Commissione di riferimento per l'acquirente
Una commissione di segnalazione dell'acquirente pari al 2% del prezzo di vendita è disponibile per qualsiasi agente che presenti l'offerente vincente.

Distanze:
Matera – 24km
Bari Airport – 86km
Beaches of Puglia – 55km

Loading the bidding panel...

Listing Agent

Bill Thomson
+39 055 218 457

Viewing

Ruud Van Oost
+34 666 211 134

Agreement Documents

Legal Documents

Log in to view legal documents

Additional Documents

Related Documents

Virtual Tour

View a Virtual Tour

Enquire

Submit an enquiry and someone will be in contact shortly.

 
*  
*  
*
*
*

Share